Vorsatzbalkon Hesse

Projekt:Anbau eines Vorsatzbalkons
Bauherr:M. Hesse
Ort:Vellmar
Realiesierungszeit:März 2000
Projektvolumen:19.000,- DM
Projektbeschreibung: 

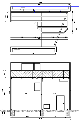
Hierbei handelte es sich um ein Vorsatzbalkon als Holzkonstruktion für eine private Bauherrin. Dabei wurde ausschließlich Brettschichtholz der Güteklasse II aus Fichte verwendet. Die Gründung erfolgte auf frostsicheren Fundamenten.

Durch die normale Geschosshöhe reichten einfache quadratische Holzstützen aus. Die Plattform wurde hauptsächlich durch drei starke Querträgern realisiert, worauf anschließend weitere Längsträger (doppelte Bauhöhe) montiert wurden. Dies wurde notwendig, da der Hofeingang frei von Stützen sein sollte, damit weiterhin ein PKW unter dem Balkon abgestellt werden konnte. Für die Anschlüsse wurden handelsübliche Holzbauverbinder verwendet.

Die entsprechende Abkantung des Balkongrundrisses wurde aus rein architektonischen Gesichtspunkten durchgeführt. Dies gibt dem Balkon eine besondere Note, wodurch sich der Balkon im Hofbereich sehr gut eingliedert.

Da eine Abdichtung des Balkons infolge Regenwassers nach unten hin notwendig war, wurde zwischen der Nut- und Federverschalung und dem Bohlenbelag eine regensichere Abdichtungsbahn angebracht und den Wasseranfall an einer nicht sichtbaren Kunststoff-Kastendachrinne ins öffentliche Kanalnetz abgeleitet.

Für das Geländer wurde eine abwechselungsreiche Gestaltung aus Holzlatten und Verglasung realisiert. Ein entsprechender Handlauf und die Verschalung der aus Stahl hergestellten Geländersäulen mit Holz rundete dieses Bauobjekt ab.