BAUPLANUNGSBÜRO VÖSSING
| Projekt: | Anbau eines Vorsatzbalkons mit Überdachung |
| Bauherr: | M. Patzig |
| Ort: | Vellmar |
| Realiesierungszeit: | Oktober 1999 |
| Projektvolumen: | 18.000,- DM |
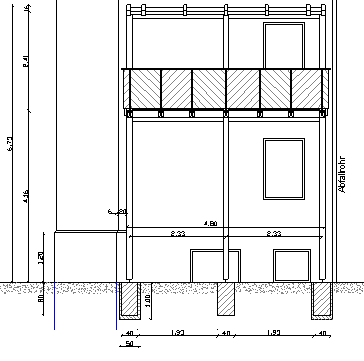
Hierbei handelte es sich um ein Vorsatzbalkon als Holzkonstruktion für einen privaten Bauherr. Dabei wurde ausschließlich Brettschichtholz der Güteklasse II aus Fichte verwendet. Die Gründung erfolgte auf frostsicheren Fundamenten.
Durch die normale Geschosshöhe reichten einfache quadratische Holzstützen aus. Die Plattform wurde durch Querträgern realisiert, wobei für die Anschlüsse handelsübliche Holzbauverbinder verwendet wurden. Als Überdachung wurden transparente Doppelstegplatten von röhm montiert, die auf die durchgängigen Stützen des Balkons mit einem zusätzlichen Querträger abgestützt wurden.
Eine Abdichtung des Balkons infolge Regenwassers nach unten hin war hier nicht notwendig war, da eine Überdachung montiert wurde. Es wurde auf der Balkon-Plattform die Nut- und Federverschalung und der Bohlenbelag angebracht. Der Wasseranfall auf der Überdachung wurde durch eine Kunststoff-Kastendachrinne an der Vorderseite aufgefangen und in das öffentliche Kanalnetz abgeleitet.
Für das Geländer wurde eine sehr ansprechende gegenläufige Bretterverschalung im Winkel von 45° angebracht. Ein entsprechender Handlauf und die Verschalung der aus Stahl hergestellten Geländersäulen mit Holz rundete dieses Bauobjekt ab.